Home
About
(864) 907-6244
Estimate

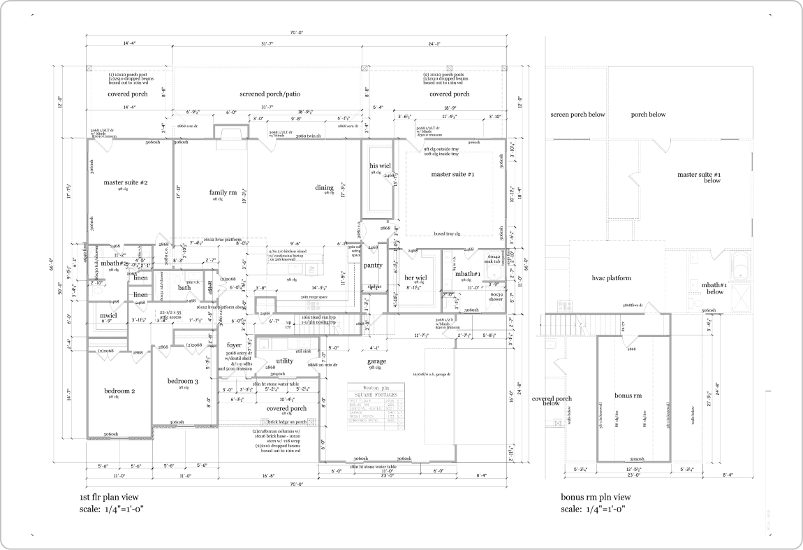
The Weston B

4 bed
3 ba
3,001 sqft
Designed with elevated living in mind, this 4-bedroom, 3-bath floor plan with bonus room showcases an expansive open-concept layout paired with refined architectural details. Dual primary suites offer exceptional privacy, each featuring spa-inspired tiled walk-in showers and private access to covered rear porches. The main living area extends to a stunning double screened porch accented by rich tongue-and-groove ceilings, creating a seamless indoor-outdoor retreat ideal for sophisticated entertaining.
  • Dual Master Suites
  • Screened in back porch
  • 2 covered patios
  • Tongue and Groove exterior ceilings
  • Lifetime warranty luxury flooring
Get an Estimate

Explore More Floor Plans

The Jetty

3 bed
3 ba
2,363 sqft
View Floor Plan

The Weston

3 bed
3 ba
1,637 sqft
View Floor Plan

The Mason

4 bed
2 ba
2,391 sqft
View Floor Plan

The Hudson

3 bed
3 ba
2,369 sqft
View Floor Plan